
By BECKY KISER
Hays Post
Two public hearings will be held regarding requested economic development incentives for the planned 24/7 Travel Store at Interstate 70, Exit 159, during Thursday's Hays City Commission meeting.
The developer, Triplett, Inc., Salina, is requesting a Tax Increment Financing District (TIF) for the mixed-use redevelopment district, as well as a Community Improvement District (CID) levying a 2% CID sales tax.
Commissioners will also vote on ordinances that would create each district for the $11.1 million project.

The TIF is anticipated to generate $4.5 million of revenue during the maximum 20-year term. It would be made available to reimburse the developer for an estimated $4.2 million TIF-eligible project costs on a pay-as-you-go basis.

Within the CID, a 2% CID sales tax would be imposed for 22 years in addition to the city’s current sales tax of 2.25%. The CID sales tax revenues would be used to reimburse the developer on a pay-as-you-go basis for CID-eligible expenses. The CID sales tax would generate about $2 million.
No property tax abatement is requested.

The developer has also requested the city provide an Industrial Revenue Bond (IRB) issuance for a sales tax exemption to support the Travel Store. The city would act as a conduit issuer, with payment obligations borne by the developer.
Purchases related to the construction of the Travel Store that are included within the IRB issuance would be eligible for an exemption from all state and local sales taxes.


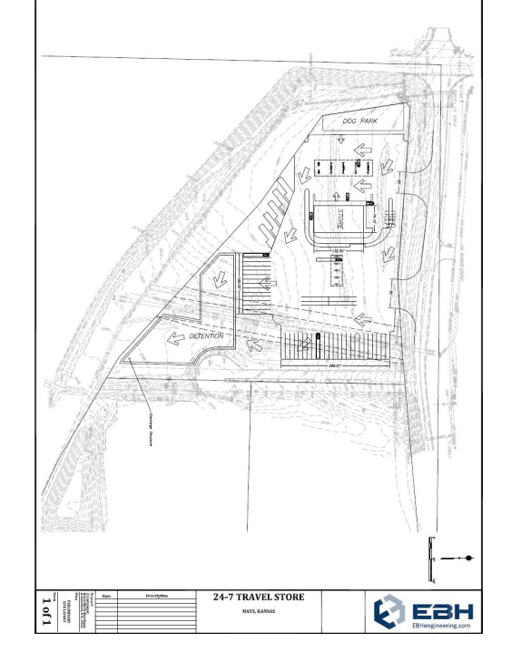
The 24/7 Travel Store would be a 9,000-square-foot full-service travel plaza and convenience store, including 12 gas fuel positions, five diesel fuel positions, electric vehicle charging stations, a restaurant in the travel plaza, a dog park and RV overnight camp sites.
It would be similar to one recently opened in Russell.
Also on the April 9 agenda is the 2025 audit presented by Adams Brown and mayoral recommendations for volunteer positions on Hays Area Planning Commission/Hays Area Board of Zoning Appeals, Hays Convention & Visitors Bureau Advisory Committee, Hays Public Library Board and the Youth Leadership Advisory Board.
The meeting starts at 4 p.m. in Hays City Hall, 1507 Main.






