
By BECKY KISER
Hays Post
A plan by a Hays resident to develop new housing in west Hays was met by concerns of nearby residents about stormwater runoff and possible flooding during Thursday's Hays City Commission work session.
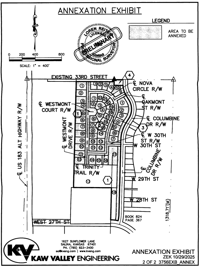
Several people who live along Columbine and 30th streets questioned whether there would be increased rainfall runoff from the north where existing agriculture fields would eventually become streets, lots and a connecting multi-use path.
"The way our stormwater management regulations are written is that the post-development cannot shed any more water than the pre-development," said Toby Dougherty, city manager. "That happens through the retention area."
The development is designed to have two points of access from Columbine and to include green space for the drainage way running north to south across the property. Street access to future 33rd Street improvements at the north end of the development will also be provided.
A multi-use path will be incorporated from 33rd Street south along Columbine to 27th Street, utilizing he stormwater drainage area/green space.


Proceeding with the annexation will also require vacating DK Ranch Addition and a portion of Country Club Estates Sixth Addition.
Jess Rohr, public works director, said the Hays Area Planning Commission unanimously approved the final plat for Smoky Hill Plains Addition on Sept. 15. He encouraged the homeowners to examine all the stormwater management documents in his office if they had more specific questions.
Developer Don Tillman, Sing Along Ranch LLC and BJKT LLC, was in the audience but did not speak.

Infrastructure at Interstate 70, Exit 161
Tom Howie, project manager, presented a proposed low bid award for infrastructure at Interstate 70, Exit 161, on 90 acres of city-owned property purchased in 2019. The initial new infrastructure would serve about 11 buildable lots, ranging in size from 2 to 8 acres, for commercial and residential development.
The low bid was from Smoky Hill, LLC, Salina, for $3,908,341.
Because the bid was about $1 million below budget, staff is also requesting an upgrade of the 27th Street roadway from the intersection of 27th and Commerce to the new intersection of the internal street for an additional $160,000. An additional $203,417 contingency will also be added.
A portion of the project will be funded with a $2 million state grant. Funding for construction services will be paid from general obligation bonds. The city recently paid off general obligation bonds for other projects. New bonds will be issued for this project. The city will not have to raise taxes to pay for the bond, Dougherty said.

2026 Street Maintenance Program
Rohr presented recommendations for next year's street maintenance projects. The city spends about $1 million annually on the work.
"More spent on maintenance offsets the higher costs of reconstruction," Dougherty said.
The street maintenance program is funded primarily with special highway funds, which in 2026 include $563,310 paid to the city.
All agenda items were moved on to the Tuesday, Nov. 25, city commission meeting for votes.






